
Casaitaly.it® - La scelta giusta per il Suo immobile
Casaitaly.it® - The right choice for your property
Casaitaly.it® - Die richtige Wahl fuer Ihre Immobilie

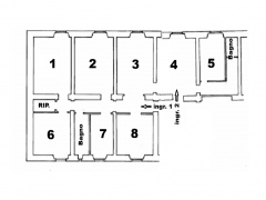
Re di Roma, immobile uso ufficio di ampia metratura, accatastato C3, composto da doppio ingresso, 8 stanze, 2 bagni, ripostiglio. L'immobile è posto al primo piano alto di un palazzo signorile con affacci luminosi ed è provvisto di riscaldamento autonomo ad aria calda/fredda.
Si affitta esclusivamente a referenziati con fideiussione bancaria.
DISPONIBILE DA MAGGIO 2026
PER INFORMAZIONI E VISITE INVIARE ESCLUSIVAMENTE UN MESSAGGIO PRECISANDO LA TIPOLOGIA DI ATTIVITA'.
